Luksusowa stodoła 175 m2 – Twój nowoczesny dom w Czapurach i okolicy
Starołęcka 34, 61-361 Poznań, PolskaSzczegóły ogłoszenia
Informacje dodatkowe
- Zabezpieczenia: drzwi antywłamaniowe, okna antywłamaniowe
- Ogrzewanie: gazowe, elektryczne, kotłownia, pompa ciepła, inne
- Parking: garaż, miejsce postojowe
- Dodatkowa powierzchnia: taras, ogródek, pomieszczenie użytkowe
- Dwupoziomowe: Tak
Opis
-
Opis
:
Szukasz przestrzeni, która łączy prestiżową architekturę z maksymalną funkcjonalnością? W GPDF Grupa Polski Dom Finansowy realizujemy marzenia o własnej rezydencji, oferując kompleksową usługę budowy nowoczesnego domu typu stodoła o imponującej powierzchni 175 m².
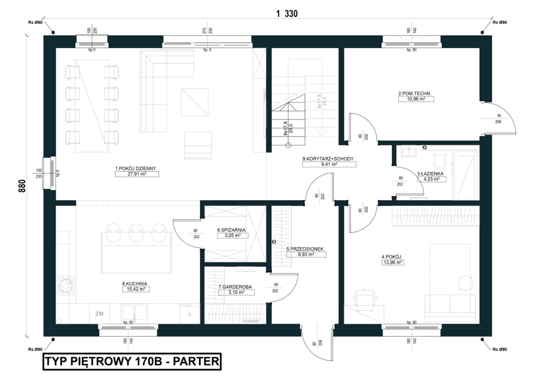
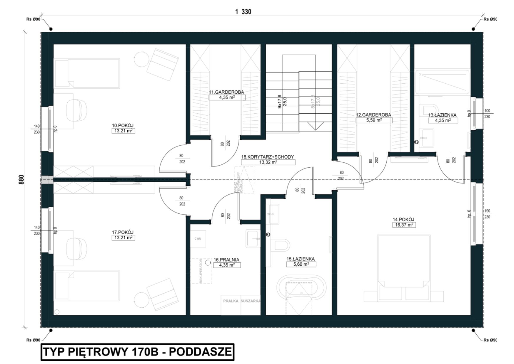
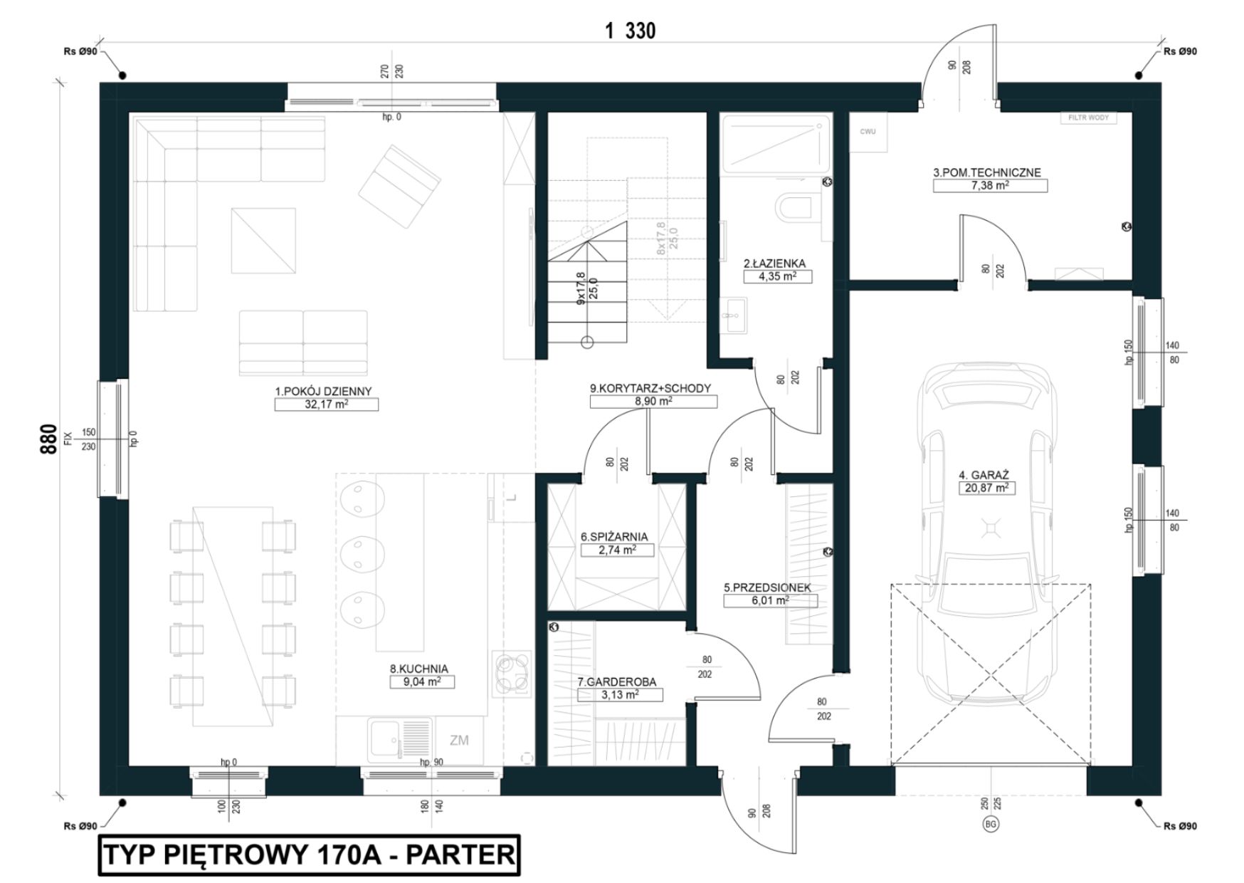
Parametry techniczne inwestycji:
- Metraż użytkowy: ok. 175 m²
- Powierzchnia zabudowy: od 92,09 m² do 117,04 m² (zależnie od wariantu)
- Liczba pokoi: 5 (przestronny salon + 4 komfortowe sypialnie)
- Liczba łazienek: 3 (pełen komfort dla dużej rodziny)
- Kondygnacje: 2 (parter + użytkowe poddasze)
- Garaż: Tak, w bryle budynku (dostępny w wariancie funkcjonalnym)
- Technologia: Energooszczędna prefabrykacja żelbetowa (ściany 15 cm + 20 cm izolacji)
- Ogrzewanie i wentylacja: Pompa ciepła oraz rekuperacja (wentylacja mechaniczna z odzyskiem ciepła) w standardzie.
- Rodzaj dachu: Dwuspadowy, o kącie nachylenia 35°.
- Czas realizacji: Szybka budowa (od 120 do 210 dni od startu montażu ścian).
- Unikalne cechy: Ponadprzeciętne przeszklenia, doskonały współczynnik przenikania ciepła (U ściany 0,16 W/m²K), nowoczesna bryła typu „Modern Barn”.
Dlaczego warto budować z GPDF?
Budowa domu w rejonie miejscowości Czapury, Kamionki czy Borówiec to inwestycja w jakość życia. Nasz zespół prowadzi Cię przez cały proces – od formalności i pozwolenia na budowę, aż po oddanie kluczy. Gwarantujemy standard „pod klucz” bez zbędnego stresu.
Nie doliczamy żadnych ukrytych kosztów do realizacji Twojej inwestycji. Jeśli nie masz jeszcze swojej ziemi, bezpłatnie pomożemy Ci znaleźć idealną działkę w lokalizacjach takich jak Dachowa, Robakowo czy Starołęka. Posiadamy również szeroką bazę innych projektów, które dopasujemy do Twoich potrzeb i budżetu.
Stawiamy na transparentność i bezpieczeństwo: oferujemy gwarancję ceny z umowy, co chroni Cię przed wzrostami cen materiałów budowlanych.
"Nie przegap okazji – BEZPŁATNIE pomożemy Tobie ubiegać się o kredyt hipoteczny lub budowlany." "GRATIS UBEZPIECZENIE nieruchomości na rok!*"
Najczęściej zadawane pytania (FAQ)
1. Jak długo trwa budowa domu w Poznaniu i okolicach? Dzięki zastosowaniu nowoczesnej technologii prefabrykacji żelbetowej, właściwy proces budowy do stanu deweloperskiego trwa zazwyczaj od 120 do 210 dni roboczych od momentu postawienia ścian. Pozwala to na zamieszkanie w nowym domu znacznie szybciej niż w przypadku technologii tradycyjnej.
2. Czy pomagacie uzyskać kredyt na budowę domu? Tak, nasza oferta jest kompleksowa. Jako GPDF Grupa Polski Dom Finansowy zapewniamy pełne wsparcie eksperckie. Proces ubiegania się o kredyt na budowę jest dla naszych klientów całkowicie bezpłatny, a dodatkowo dbamy o wszystkie aspekty ubezpieczeniowe.
3. Czy mogę liczyć na dom pod klucz w miejscowościach takich jak Kamionki czy Czapury? Oczywiście. Realizujemy inwestycje kompleksowo. Nasz standard współpracy obejmuje pełne wsparcie techniczne i formalne, dzięki czemu budowa domu pod klucz przebiega sprawnie, a inwestor może skupić się na planowaniu przeprowadzki.
FINANSOWANIE I KONTAKT
Chcesz wybudować na kredyt? Nasza pomoc w realizacji inwestycji oraz w uzyskaniu kredytu jest BEZPŁATNA! Pomożemy BEZPŁATNIE - Zespół ekspertów z GPDF Grupa Polski Dom Finansowy - wybierze najlepszy kredyt dla Ciebie, a ubezpieczenie domu na rok otrzymasz GRATIS!Zapraszam do kontaktu i na niezobowiązujące spotkanie – zaplanujmy wspólnie budowę Twojego wymarzonego domu! Łukasz Soroski Tel – 782 155 091 Nasze biuro znajduje się w Poznaniu przy ul. Starołęckiej 34A/20.
*Powyższa oferta ma charakter informacyjny i nie stanowi oferty handlowej w rozumieniu art. 66 §1 Kodeksu Cywilnego. *szczegóły promocji dostępne w biurze GPDF i na stronie biura.
Pokaż cały opis
Lokalizacja
- Miasto: Poznań

