Nowoczesny dom energooszczędny w cenie mieszkania – Poznań i okolice
Starołęcka 34, 61-361 Poznań, PolskaSzczegóły ogłoszenia
Informacje dodatkowe
- Zabezpieczenia: drzwi antywłamaniowe, okna antywłamaniowe
- Ogrzewanie: gazowe, elektryczne, kotłownia, pompa ciepła, inne
- Parking: garaż, miejsce postojowe
- Dodatkowa powierzchnia: taras, ogródek
Opis
-
Opis
:
Szukasz przestrzeni dla swojej rodziny, ale ceny mieszkań w centrum Poznania Cię przerażają? Zrealizuj marzenie o własnym ogrodzie i czterech kątach w cenie lokalu w bloku. Oferujemy kompleksową usługę budowy nowoczesnego domu parterowego, który łączy ekstremalną energooszczędność z funkcjonalnym układem pomieszczeń.
Specyfikacja techniczna:
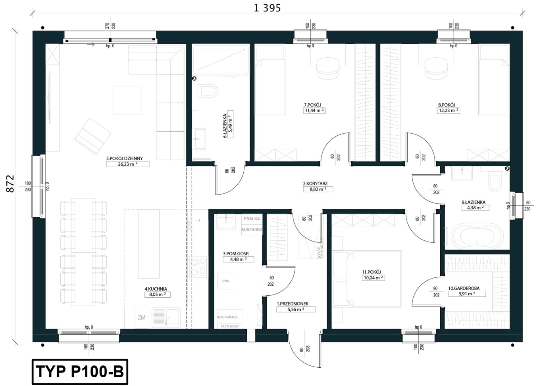
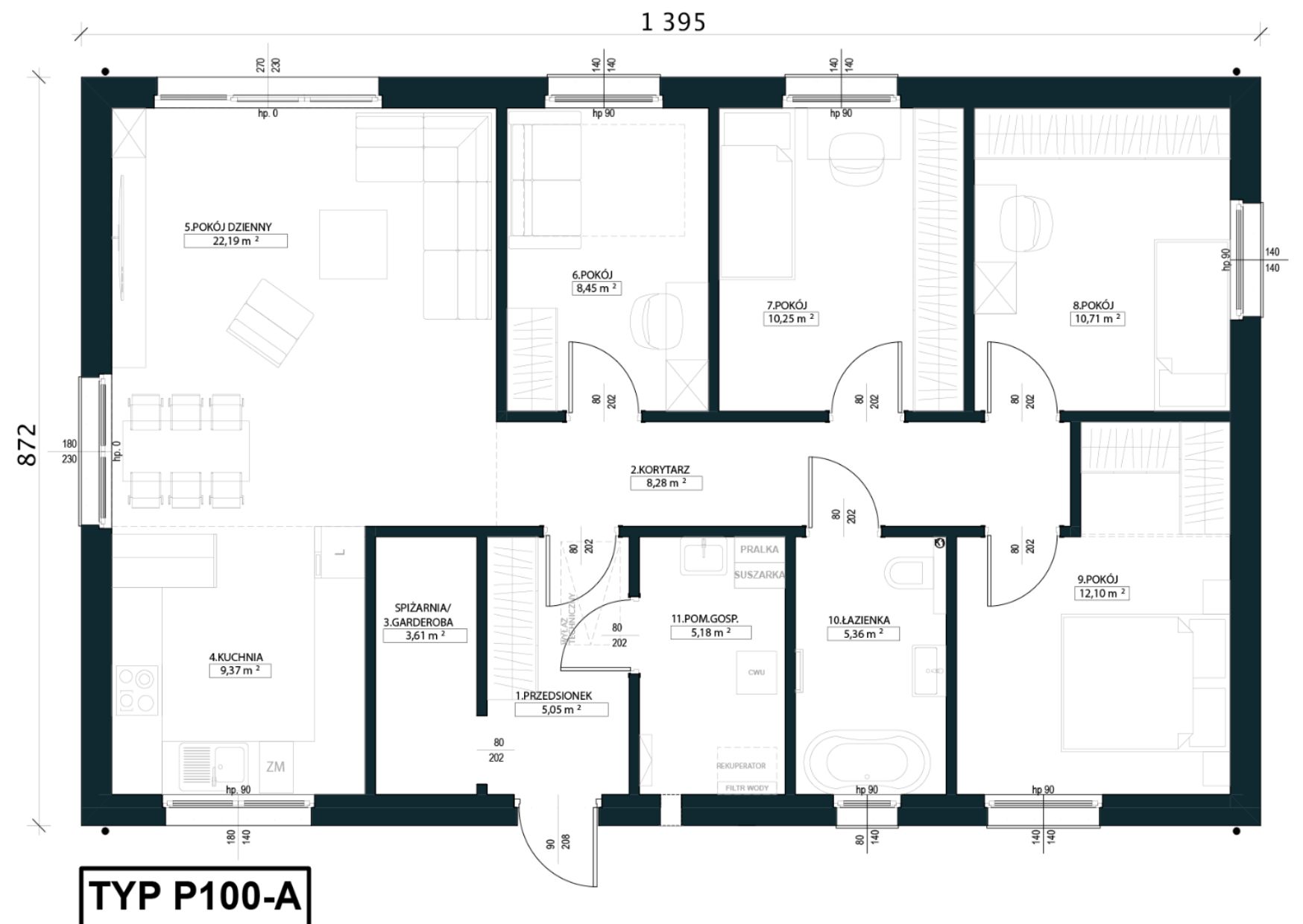
- Powierzchnia użytkowa: 100,55 m²
- Powierzchnia zabudowy: 121,64 m²
- Liczba pokoi: 4 sypialnie + przestronny salon z aneksem
- Liczba łazienek: do 2 (zależnie od wariantu)
- Kondygnacje: parterowy
- Czas realizacji: budowa gotowa w 180 dni
- Technologia: nowoczesne prefabrykaty żelbetowe (30 lat gwarancji na konstrukcję ścian)
- Ogrzewanie: podłogowe (wodne lub elektryczne) + rekuperacja w standardzie
- Dach: czterospadowy lub dwuspadowy (kąt 35°)
- Unikalne cechy: współczynnik przenikania ciepła ścian U=0,16 W/(m•K) – gwarancja bardzo niskich rachunków.
Twoja bezpieczna droga do własnego domu
W GPDF Grupa Polski Dom Finansowy wiemy, że budowa to proces, który może wydawać się skomplikowany. Dlatego prowadzimy Cię za rękę od pierwszych formalności aż po standard pod klucz. Nie musisz martwić się o pozwolenia na budowę czy wybór ekip wykonawczych – my zajmiemy się wszystkim.
Realizujemy inwestycje w najpopularniejszych lokalizacjach wokół Poznania. Marzy Ci się dom blisko natury w Kamionkach lub Borówcu? A może szukasz działki w miejscowościach Czapury, Dachowa lub Robakowo? Nasz zespół pomoże Ci znaleźć idealny grunt pod Twoją inwestycję. Działamy rzetelnie i lokalnie, obejmując zasięgiem również dzielnice takie jak Rataje czy Starołęka.
Dlaczego warto wybrać współpracę z GPDF?
Budując z nami, zyskujesz pełną transparentność finansową. Stosujemy zasadę prowizji 0% – brak ukrytych opłat za nasze wsparcie przy realizacji projektu. Co więcej, zapewniamy gwarancję stałej ceny, co jest kluczowe w dobie zmieniających się kosztów materiałów budowlanych.
"Nie przegap okazji – BEZPŁATNIE pomożemy Tobie ubiegać się o kredyt hipoteczny lub budowlany." "GRATIS UBEZPIECZENIE nieruchomości na rok!*"
Najczęściej zadawane pytania (FAQ)
1. Ile trwa budowa domu w Poznaniu i okolicach? Dzięki zastosowaniu zaawansowanej technologii prefabrykowanej, czas realizacji od momentu wejścia na budowę do stanu deweloperskiego wynosi zazwyczaj 180 dni. Pozwala to na znacznie szybsze wprowadzenie się niż w przypadku technologii murowanej.
2. Czy pomagacie uzyskać kredyt na budowę domu? Tak, jako Grupa Polski Dom Finansowy specjalizujemy się w finansowaniu nieruchomości. Nasi eksperci bezpłatnie sprawdzą Twoją zdolność i dobiorą najlepszy kredyt na budowę, dopasowany do systemu transzowego inwestycji.
3. Czy mogę zamówić wykończenie domu pod klucz? Oczywiście. Choć bazowa oferta dotyczy stanu deweloperskiego, oferujemy pełne wsparcie w doprowadzeniu budynku do standardu domu pod klucz. Dzięki temu odbierasz gotowe do zamieszkania wnętrza, oszczędzając czas na szukanie osobnych podwykonawców.
FINANSOWANIE I KONTAKT Chcesz wybudować na kredyt? Nasza pomoc w realizacji inwestycji oraz w uzyskaniu kredytu jest BEZPŁATNA! Pomożemy BEZPŁATNIE - Zespół ekspertów z GPDF Grupa Polski Dom Finansowy - wybierze najlepszy kredyt dla Ciebie, a ubezpieczenie domu na rok otrzymasz GRATIS!
Zapraszam do kontaktu i na niezobowiązujące spotkanie – zaplanujmy wspólnie budowę Twojego wymarzonego domu! Łukasz Soroski Tel – 782 155 091 Nasze biuro znajduje się w Poznaniu przy ul. Starołęckiej 34A/20. *Powyższa oferta ma charakter informacyjny i nie stanowi oferty handlowej w rozumieniu art. 66 §1 Kodeksu Cywilnego. Szczegóły promocji dostępne w biurze GPDF i na stronie biura.
Pokaż cały opis
Lokalizacja
- Miasto: Poznań

